Appartement Maria Stuartplein in Den Haag


sinds 13-12-2025 18:49:54


prijs: € 1570
Locatie : Nijmegen  (Gelderland)
Website : Bezoek website

Kenmerken

Beschrijving

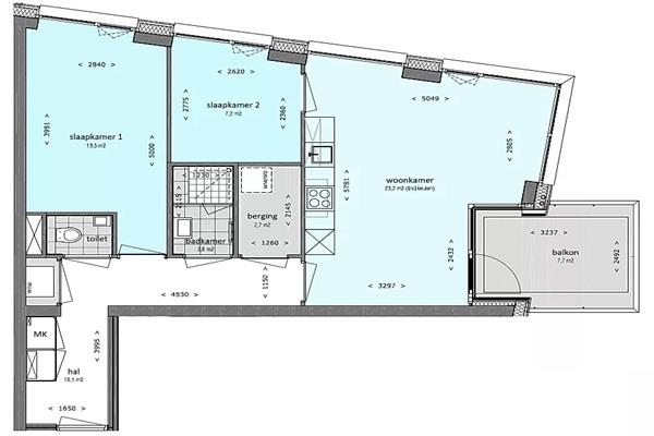
Het appartement is praktisch ingedeeld en voelt ruim aan, ideaal voor één of twee personen. De grote ramen zorgen voor veel licht en een uitzicht dat eigenlijk de hele dag door mooi blijft.
De leefkeuken is een fijne plek om te koken en te zitten. Je hebt de beschikking over een inductiekookplaat met afzuigkap, combimagnetron, vaatwasser en een ruime koel-vriescombinatie. Of je nu snel iets klaarmaakt of langer wilt tafelen, hier kan het allemaal.
De badkamer is modern, met een inloopdouche en een net wastafelmeubel. Het toilet is apart, wat in het dagelijks gebruik prettig is.
Kenmerken: Kopen in Nijmegen



Klik hier en bezoek de website voor meer informatie
Advertentienummer: 120154162 Meld aan Aanbodpagina